0
Skip to Content
M o s l e y D e s i g n B u i l d
Home
Services
Projects
Reviews
About
Contact
Open Menu
Close Menu
M o s l e y D e s i g n B u i l d
Home
Services
Projects
Reviews
About
Contact
Open Menu
Close Menu
Home
Services
Projects
Reviews
About
Contact
Modern Farmhouse Rebuild in Rosewood
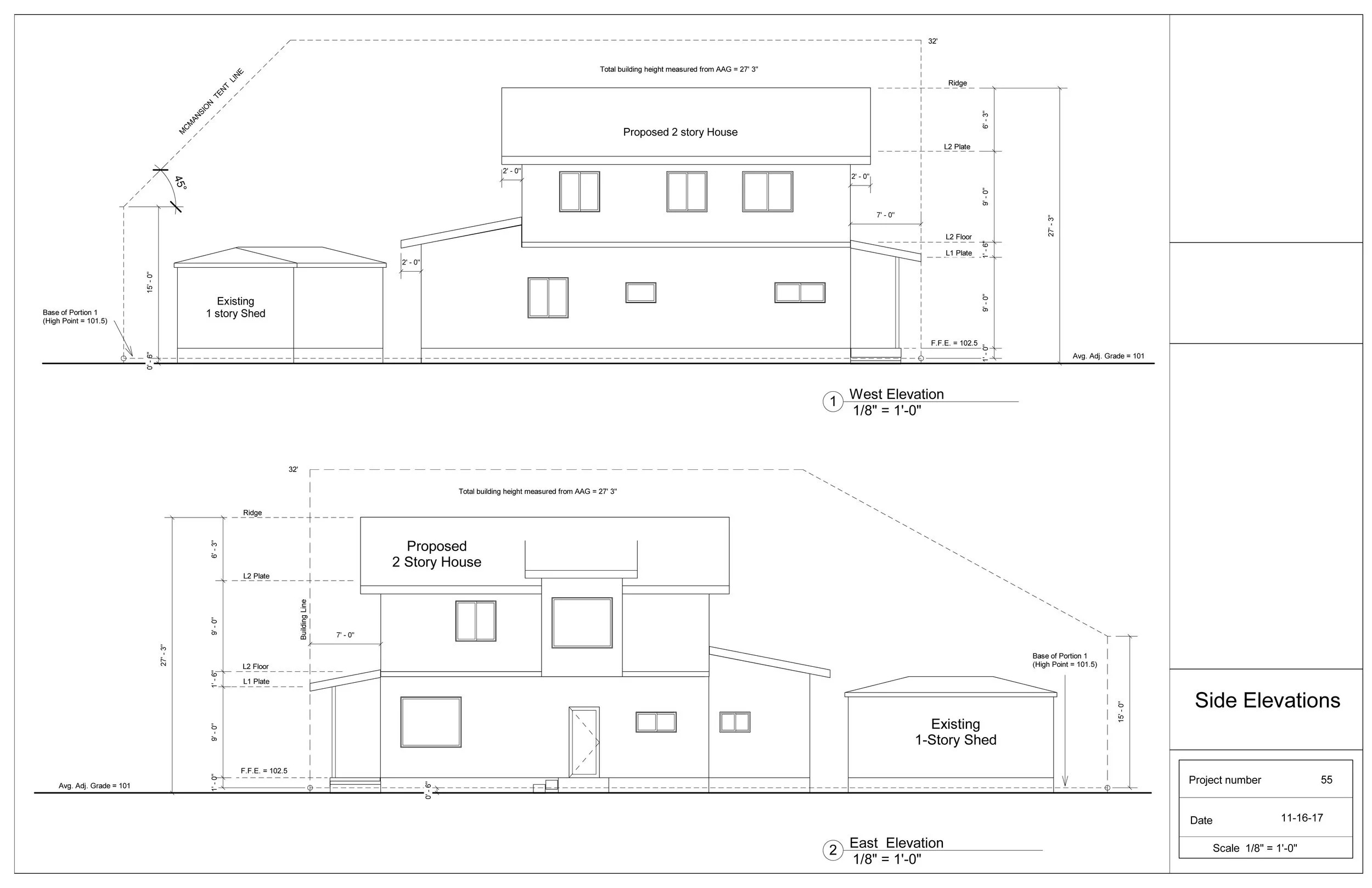
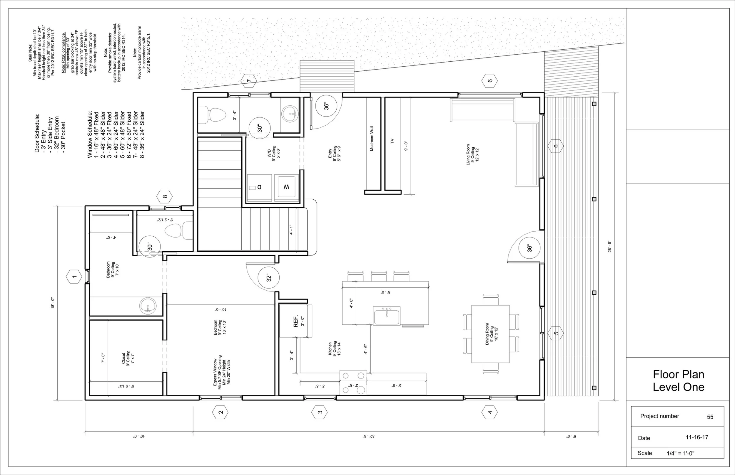
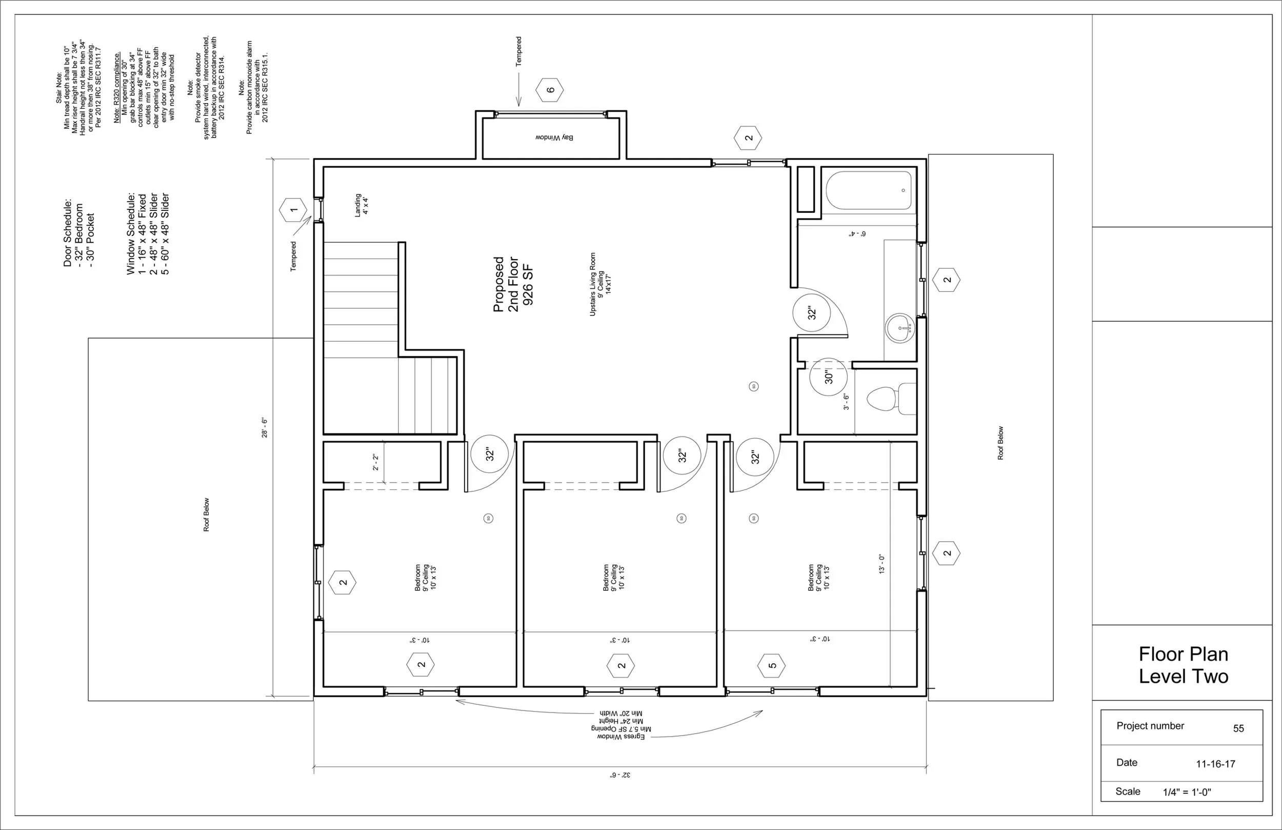
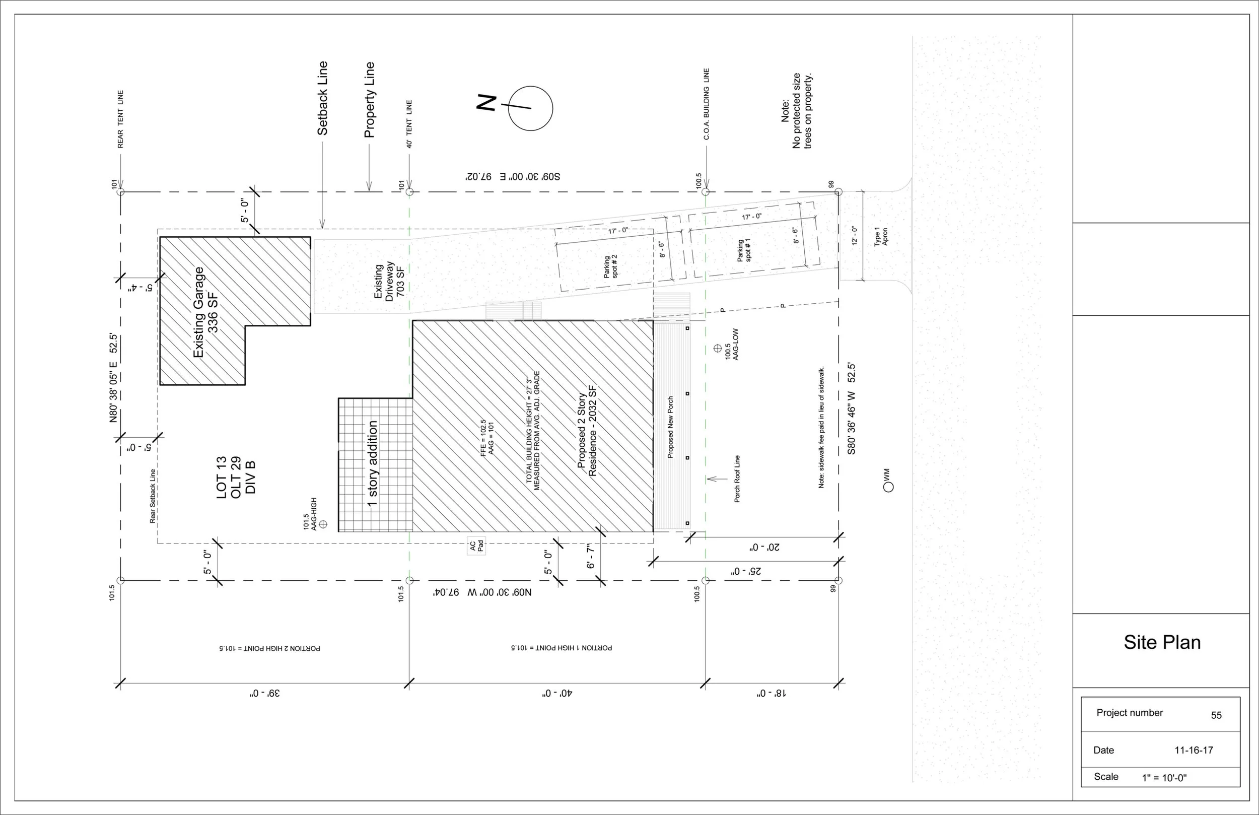
Drawings and Floor Plans